株式会社カナイは、木造住宅をはじめとする建築金物を製造・販売しております。

   MENU

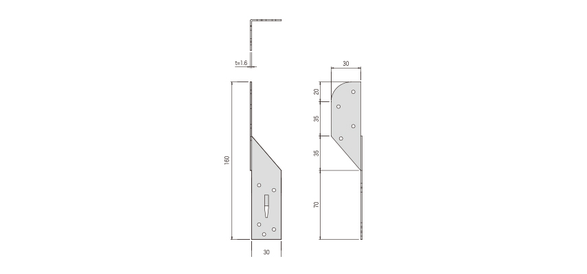
あおり止め金物STS160

あおり止め金物STS160
  • あおり止め金物STS160
  • あおり止め金物STS160
  • あおり止め金物STS160
  • あおり止め金物STS160
  • あおり止め金物STS160

製品説明

・金物の上部をカットしてあるので、金物が垂木の上端から飛び出しません。
・左右2タイプをご用意しておりますので、部材との干渉があっても取り付けることができます。
・仮止めの爪付きで、高所作業を安全に効率よく行えます。

仕様

材質 JIS G 3302 SGHC 1.6t
表面処理 Z27
承認等 (一財)日本建築総合試験所 IIJ-07-0047(1)

あおり止め金物STS160

商品コード 規格・寸法 入数 設計価格 記号
1210164004 右(逆折れ) 100個/ケース 130円/個 STS160-R
1210164005 100個/ケース 90円/個 STS160-L

耐力

短期許容耐力
3.84kN

注意点

・専用接合具を必ずご使用ください。
・壁枠材への接合は構造用面材の上から行ってください。

関連製品

フリーワード

カテゴリ検索

告示第1460号第1号から探す

告示第1460号第2号から探す

特徴から探す

表面処理及び材質

(木造建築用接合金物のための防衛処理)

座金に関する事項

設計・施工に関する事項

使用ビスから探す

皿ビス

皿ビス(ドリル先)

鍋ビス

鍋ビス(先割れ)

ラッパビス

六角ビス(HS)

六角ビス(H)

フラットビス

Φ6.0×30・Φ6.0×43(鍋ビス)

チーズビス

Φ7.0-YS-N(大鍋ビス)

スクリューくぎ

※複数検索での検索は行えませんのでご了承ください。

  • お問い合わせ電話番号はこちら
  • 東日本営業部 048-924-1131
  • 西日本営業部 06-6599-8273